2100 zł
Gwarancja najniższej ceny i najszybszej wysyłki
Zobacz wersję
podstawową
Dostępny od ręki
Kup teraz
Dodaj do schowka
Masz pytania do projektu? Zapytaj nas
Koszt wysyłki w cenie projektu
GRATIS
Bezterminowa wymiana*. Zwroty do 14 dni

Zobacz wersję budynku gospodarczego BGS1 Projekt posiada poddasze nie użytkowe. Ta niezwykle urocza stajnia została zaprojektowana tak, by spełniać wszystkie normy niezbędne ku temu, by mogły tam...

Czytaj więcej

Powierzchnia użytkowa 57.63 m²
+ Strych20.54 m²
Min. wymiary działki
długość x szerokość
14.55 x 17.35 m
Dostępne technologiemurowana, szkieletowa
Zobacz pełne dane projektu

Rzuty i przekroje

Przyziemie

Przyziemie

NrNazwaPow. użytkowa [m²]Pow. netto [m²]
7.Strych20.540
1.Komunikacja16.940
2.Boks10.50
3.Boks10.50
4.Paszalnia100
5.Łazienka4.340
6.Siodlarnia5.350
Suma78.170
Zamów szczegółowe rysunki
Przekrój A-A

Przekrój A-A

Zamów szczegółowe rysunki
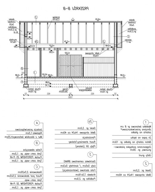
Przekrój B-B

Przekrój B-B

Zamów szczegółowe rysunki

Dane techniczne

Powierzchnia użytkowa
+ Strych
57.63 m²
20.54 m²
Powierzchnia zabudowy 67.79 m²
Powierzchnia kondygnacji netto 0.00 m²
Powierzchnia całkowita 89.83 m²
Kubatura 351.00 m³
Kąt nachylenia dachu35°
Wymiary budynku
długość x szerokość
10.35 x 6.55 m
Wysokość budynku 6.32 m
Min. wymiary działki
długość x szerokość
14.55 x 17.35 m
Ilość boksów2
Dachdwuspadowy
Ilość pomieszczeń7

Opis i technologia projektu

 

Projekt posiada poddasze nie użytkowe.


Ta niezwykle urocza stajnia została zaprojektowana tak, by spełniać wszystkie normy niezbędne ku temu, by mogły tam we właściwych warunkach przebywać konie. Jest jednak obiektem stworzonym z myślą o tych z Państwa, którym nie zależy na rozwijaniu własnej hodowli. Wewnątrz budynku, z lewej jego strony, przewidziano obok siebie dwa boksy o powierzchni 10,5 m2. Przez środek idzie szeroka komunikacja, z której można wejść do paszalni lub siodlarni, a stąd do wygodnej łazienki. Cały obiekt jest bardzo zgrabny, dobrze prezentuje się z zewnątrz, a wnętrze jest bardzo funkcjonalne. Zanim jednak wybierze się ten projekt, należy się zastanowić, czy ilość stanowisk nie okaże się w przyszłości za mała.

Projekt stajni dla koni. Projekt stajni składa się z czterech egzemplarzy a w tym części architektonicznej, konstrukcyjnej, wewnętrznych instalacji wod.-kan i instalacji wewnętrznej elektrycznej. W projekcie załączone są podstawowe zestawienie stali, drewna i stolarki okienno-drzwiowej. Do projektu dołączamy bezpłatną zgodę na wprowadzenie zmian, oświadczenie projektantów o wykonaniu projektu zgodnie z obowiązującymi normami i przepisami oraz kserokopie uprawnień projektantów wraz z aktualnym wpisem do izby.

Kochasz konie? Zapraszamy do serwisu ogłoszeniowego i forum najnowszych. Zobacz najnowsze ogłoszenia.

Technologia tradycyjna :
- szerokość komunikacji : 2,8m
- wymiary boksów: 3,0m x 3,5m
- wymiary bramy 2,5m x 2,5m
- ściany zewnętrzne murowane grubości 25 cm.
- ściany wewnętrzne działowe murowane grubości 11,5 cm.
- wszystkie ściany wykonane z pustaków ceramicznych "POROTHERM".
- strop drewniany 15x25 - dach dwuspadowy o kącie 35°
- dach pokryty dachówką ceramiczną.
- konstrukcja więźby dachowej w układzie krokwiowym z drewna
- pow. dachu : 110m2
- w łazience zastosowano przepływowy podgrzewacz wody umywalkowo natryskowy.

W projektach rekomendujemy:  produkty Porotherm, Koramic, Terca firmy Wienerberger;  bramy, napędy i drzwi marki Hörmann; okna połaciowe VELUX; systemy ociepleń TermoOrganika; systemy grzewcze Viessmann.

Szczegóły dotyczące poszczególnych przegród znajdziesz we wpisie Technologie

Każdy z 6 egzemplarzy (3 projekty architektoniczno-budowlane i 3 projekty techniczne) zamówionego u nas kompletu dokumentacji architektoniczno-konstrukcyjnej z branżami jest zaplombowany. Więcej informacji o plombach znajdziesz tu - Dlaczego plombujemy dokumentację?

By upewnić się, czy projekt pasuje do warunków zabudowy Twojej działki lub do wytycznych planu miejscowego zamów rysunki szczegółowe (pod rzutem) oraz przedstaw je lokalnemu projektantowi adaptującemu (możesz skorzystać z pomocy naszych przedstawicieli).

Zestawienia materiałów

Technologia murowana tradycyjna
Stal596.29 kg
Drewno10.279 m³
Dach110 m²

Kosztorys orientacyjny brutto

Stan zerowy23052 zł
Stan surowy50714 zł
Roboty wykończeniowe wewnętrzne32129 zł
Roboty wykończeniowe zewnętrzne13399 zł
Instalacje i przyłącza24781 zł
Suma144075 zł

Realizacje projektu "S1 stajnia dla koni - 2 boksy"

Realizacja projektu stajni - S01
Realizacja projektu stajni - S1
Zapytaj o wycenę budowy