NICEA - dom mieszkalny wolnostojący z strychem do adaptacji, w technologii szkieletowej. Zapytaj o wersję murowaną. NICEA 2 - ZOBACZ WERSJĘ Z PODDASZEM UŻYTKOWYM Projekt składa się z części...
Powierzchnia użytkowa | 105.87 m² |
+ kotłownia | 4.14 m² |
+ wiata garażowa | 26.6 m² |
+ weranda | 14.26 m² |
+ strych do adaptacji | 72.73 m² |
Min. wymiary działki długość x szerokość | 18.00 x 21.50 m |
Dostępne technologie |
Rzuty i przekroje

Rzut przyziemia
Nr | Nazwa | Pow. użytkowa [m²] | Pow. netto [m²] |
---|---|---|---|
01. | Wiatrołap | 3.02 | 3.02 |
02. | Komunikacja | 10.63 | 10.63 |
03. | Łazienka | 5.65 | 5.65 |
04. | Pokój | 11.61 | 11.61 |
05. | Garderoba | 3.58 | 3.58 |
06. | Pokój | 13.84 | 13.84 |
07. | Pokój | 15.85 | 15.85 |
08. | Salon | 33.66 | 33.66 |
09. | Kuchnia | 8.03 | 8.03 |
Suma | 105.87 | 105.87 | |
10. | Kotłownia | 4.14 | 4.14 |
11. | Wiata | 26.40 | 26.40 |
12. | Taras | 14.26 | 14.26 |
Suma | 44.8 | 44.8 |

Strych do adaptacji
Nr | Nazwa | Pow. użytkowa [m²] | Pow. netto [m²] |
---|---|---|---|
1 | Strych | 72.73 | 120.81 |
Suma | 72.73 | 120.81 |
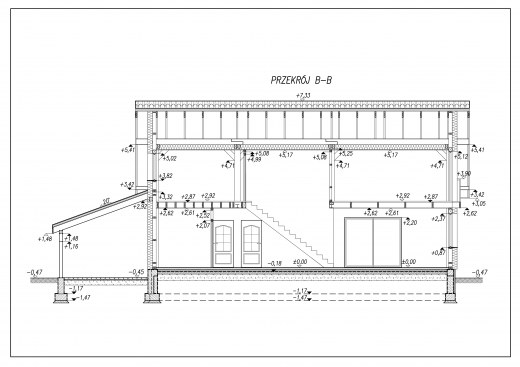
Przekrój


Plan sytuacyjny

Dane techniczne
Powierzchnia użytkowa + kotłownia + wiata garażowa + weranda + strych do adaptacji | 105.87 m² 4.14 m² 26.6 m² 14.26 m² 72.73 m² |
Powierzchnia zabudowy + wiata garażowa + weranda | 135.00 m² 28 m² 17.64 m² |
Powierzchnia kondygnacji netto | 110.01 m² |
Powierzchnia całkowita | 318.96 m² |
Kubatura | 961.55 m³ |
Kąt nachylenia dachu | 35°, 20° |
Wymiary budynku długość x szerokość | 13.50 x 10.00 m |
Wysokość budynku | 7.80 m |
Min. wymiary działki długość x szerokość | 18.00 x 21.50 m |
Dach | dwuspadowy |
Kondygnacja | z poddaszem |
Ilość pomieszczeń | 10 |
Pow. tarasów/werandy/wiaty/schodów zew. | 50.14 m² |
Projekt bez garażu | Tak |
Projekt z wiatą garażową | Tak |
Projekt z kotłownią | Tak |
Opis i technologia projektu
NICEA - dom mieszkalny wolnostojący z strychem do adaptacji, w technologii szkieletowej. Ogrzewany pompą ciepła powietrze-woda.
Zapytaj o wersję murowaną.
NICEA 2 - ZOBACZ WERSJĘ Z PODDASZEM UŻYTKOWYM
Projekt składa się z części architektonicznej, konstrukcyjnej, wewnętrznych instalacji sanitarnych i instalacji elektrycznej. W projekcie załączone są podstawowe zestawienie stali, drewna i stolarki okienno-drzwiowej. Do projektu dołączamy bezpłatną zgodę na wprowadzenie zmian, oświadczenie projektantów o wykonaniu projektu zgodnie z obowiązującymi normami i przepisami oraz kserokopie uprawnień projektantów wraz z aktualnym wpisem do izby. W przypadku zamówienia projektu w technologii lekkiej, drewnianej konstrukcji szkieletowej, powierzchnia użytkowa budynku jest o około 7% większa.
- ściany zewnętrzne nośne: słupki 5x15 rozstawione max. co 40cm obite zewnątrz płytą OSB 3 , a wewnątrz płytą gipsowo-włóknową 1,25cm, przestrzeń pomiędzy słupkami wypełniona wełną mineralną 15cm.
- ściany wewnętrzne nośne: słupki 5x15 rozstawione max. co 40cm obite zewnątrz i wewnątrz płytą gipsowo-włóknową 1,25cm , przestrzeń pomiędzy słupkami wypełniona wełną mineralną 15cm.
- ściany wewnętrzne działowe: słupki 5x9 rozstawione max. co 40cm obite zewnątrz i wewnątrz płytą GK , przestrzeń pomiędzy słupkami wypełniona wełną mineralną 9cm.
- ocieplenie styropianem 14cm.
-Wysokość ściany kolankowej 0.65m
Technologia tradycyjna : zapytaj o dostępność
- ściany zewnętrzne murowane grubości 30cm
- ocieplenie styropian
W projektach rekomendujemy: produkty Porotherm, Koramic, Terca firmy Wienerberger; bramy, napędy i drzwi marki Hörmann; okna połaciowe VELUX; systemy ociepleń TermoOrganika; systemy grzewcze Viessmann.
Szczegóły dotyczące poszczególnych przegród znajdziesz we wpisie Technologie
Każdy z 6 egzemplarzy (3 projekty architektoniczno-budowlane i 3 projekty techniczne) zamówionego u nas kompletu dokumentacji architektoniczno-konstrukcyjnej z branżami jest zaplombowany. Więcej informacji o plombach znajdziesz tu - Dlaczego plombujemy dokumentację?
By upewnić się, czy projekt pasuje do warunków zabudowy Twojej działki lub do wytycznych planu miejscowego zamów rysunki szczegółowe (pod rzutem) oraz przedstaw je lokalnemu projektantowi adaptującemu (możesz skorzystać z pomocy naszych przedstawicieli).
Zestawienia materiałów
Technologia drewniana szkieletowa | |
Stal | 1990 kg |
Drewno | 35.351 m³ |
Dach | 252 m² |
Kosztorys orientacyjny brutto
Stan zerowy | 69451 zł |
Stan surowy | 152792 zł |
Roboty wykończeniowe wewnętrzne | 96797 zł |
Roboty wykończeniowe zewnętrzne | 40368 zł |
Instalacje i przyłącza | 74660 zł |
Suma | 434067 zł |
Warianty projektu
Podobne projekty
.jpg)
SEVILLA 4 - na zgłoszenie do 70m2 pompa ciepła, wentylacja mechaniczna z rekuperacją

WELS 4

WELS 3

WELS
.jpg)
SEVILLA 4 - na zgłoszenie do 70m2

NICEA ogrzewanie pompa ciepła

NICEA