G10 budynek gospodarczy





Budynek gospodarczy, wolnostojący. Projekt składa się z części architektonicznej, konstrukcyjnej i wewnętrznej instalacji elektrycznej. W projekcie załączone są podstawowe zestawienie stali,...
| Powierzchnia użytkowa | 24.70 m² |
| Min. wymiary działki długość x szerokość | 14.00 x 11.30 m |
| Dostępne technologie | |
| Warianty projektu | garaż, budynek gospodarczy |
Rzuty i przekroje

Przyziemie
| Nr | Nazwa | Pow. użytkowa [m²] | Pow. netto [m²] |
|---|---|---|---|
| 1. | Garaż | 24.7 | 0 |
| Suma | 24.7 | 0 |

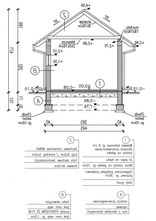
Przekrój A-A
Dane techniczne
| Powierzchnia użytkowa | 24.70 m² |
| Powierzchnia zabudowy | 30.10 m² |
| Powierzchnia kondygnacji netto | 0.00 m² |
| Powierzchnia całkowita | 30.10 m² |
| Kubatura | 137.00 m³ |
| Kąt nachylenia dachu | 35° |
| Wymiary budynku długość x szerokość | 4.30 x 7.00 m |
| Wysokość budynku | 4.71 m |
| Min. wymiary działki długość x szerokość | 14.00 x 11.30 m |
| Powierzchnia zabudowy | do 35m² |
| Dach | dwuspadowy |
| Ilość pomieszczeń | 1 |
Opis i technologia projektu
Budynek gospodarczy, wolnostojący. Projekt składa się z części architektonicznej, konstrukcyjnej i wewnętrznej instalacji elektrycznej. W projekcie załączone są podstawowe zestawienie stali, drewna i stolarki okienno-drzwiowej. Do projektu dołączamy bezpłatną zgodę na wprowadzenie zmian, oświadczenie projektantów o wykonaniu projektu zgodnie z obowiązującymi normami i przepisami oraz kserokopie uprawnień projektantów wraz z aktualnym wpisem do izby. W przypadku zamówienia projektu w technologii lekkiej, drewnianej konstrukcji szkieletowej, powierzchnia użytkowa budynku jest o około 7% większa.
Technologia tradycyjna :
- powierzchnia użytkowa -24,70m2
- powierzchnia całkowita -30,10m2
- kubatura - 137,00m3
- ściany zewnętrzne nośne murowane grubości 25cm
- wszystkie ściany wykonane pustaków ceramicznych "POROTHERM"
- wysokość budynku 4,71m
- dach dwuspadowy 35°
- więźba dachowa drewniana
- pokrycie dachu dachówka cementowa bądź ceramiczna
- wymiar bramy garażowej 2,5x2,2m
Zobacz projekt G10 w wersji szkieletowej.
W projektach rekomendujemy: produkty Porotherm, Koramic, Terca firmy Wienerberger; bramy, napędy i drzwi marki Hörmann; okna połaciowe VELUX; systemy ociepleń TermoOrganika; systemy grzewcze Viessmann.
Szczegóły dotyczące poszczególnych przegród znajdziesz we wpisie Technologie
Każdy z 6 egzemplarzy (3 projekty architektoniczno-budowlane i 3 projekty techniczne) zamówionego u nas kompletu dokumentacji architektoniczno-konstrukcyjnej z branżami jest zaplombowany. Więcej informacji o plombach znajdziesz tu - Dlaczego plombujemy dokumentację?
By upewnić się, czy projekt pasuje do warunków zabudowy Twojej działki lub do wytycznych planu miejscowego zamów rysunki szczegółowe (pod rzutem) oraz przedstaw je lokalnemu projektantowi adaptującemu (możesz skorzystać z pomocy naszych przedstawicieli).
Zestawienia materiałów
| Technologia murowana tradycyjna | |
| Stal | 262.5 kg |
| Drewno | 2.456 m³ |
| Pow. ścian nośnych zew. | 58 m² |
| Dach | 55 m² |
Kosztorys orientacyjny brutto
| Stan zerowy | 7509 zł |
| Stan surowy | 16519 zł |
| Roboty wykończeniowe wewnętrzne | 10465 zł |
| Roboty wykończeniowe zewnętrzne | 4364 zł |
| Instalacje i przyłącza | 8072 zł |
| Suma | 46930 zł |
Warianty projektu
Podobne projekty
G339A budynek gospodarczy szkielet drewniany
W4 wiata garażowa dwustanowiskowa
W3 Wiata garażowa jednostanowiskowa
G211 wiata garażowa, szkielet drewniany
G211 wiata garażowa
GBT1 projekt budynku gospodarczego
G10 garaż jednostanowiskowy


.png)







